Nos preocupa tu privacidadEn pisos.com utilizamos cookies propias y de terceros para dar un servicio satisfactorio mediante cookies técnicas, de personalización y para fines analíticos. pulsa AQUÍ para más información. Puedes aceptar todas las cookis pulsando el botón "aceptar" o configurarlas o rechazar su uso pulsando
Mensaje enviado con éxito En breve nos pondremos en contacto.
Ha ocurrido un error. Inténtelo de nuevo más tarde.
Recomendar a un amigo
Mensaje enviado con éxito
Ha ocurrido un error. Inténtelo de nuevo más tarde.
Ref. TAACS314406
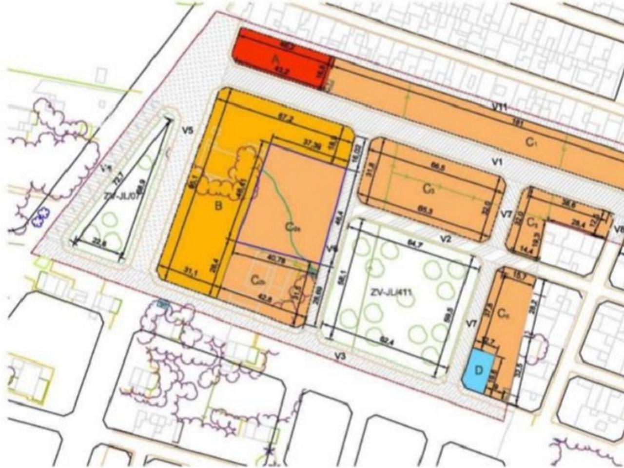
Suelo urbano residencial en Castellón de la Plana, en zona residencial en expansión con todo tipo de servicios cercanos, a 500 m. del Centro Comercial La Salera y a 10 min. de coche del centro de la ciudad. Cuenta con 3.729 m2 de suelo con fachada a tres calles y una edificabilidad de 7.480 m2 de techo. Ocupación: 100%. Alineación a vial. Número alturas: B+II. Para la promoción de 84 viviendas en bloque con la obra nueva inscrita. Oportunidad.
Suelo urbano residencial en Castellón de la Plana, en zona residencial en expansión con todo tipo de servicios cercanos, a 500 m. del Centro Comercial La Salera y a 10 min. de coche del centro de la ciudad. Cuenta con ...
Suelo urbano residencial en Castellón de la Plana, en zona residencial en expansión con todo tipo de servicios cercanos, a 500 m. del Centro Comercial La Salera y a 10 min. de coche del centro de la ciudad. Cuenta con 3.729 m2 de suelo con fachada a tres calles y una edificabilidad de 7.480 m2 de techo. Ocupación: 100%. Alineación a vial. Número alturas: B+II. Para la promoción de 84 viviendas en bloque con la obra nueva inscrita. Oportunidad.