Ref. TAASA249488
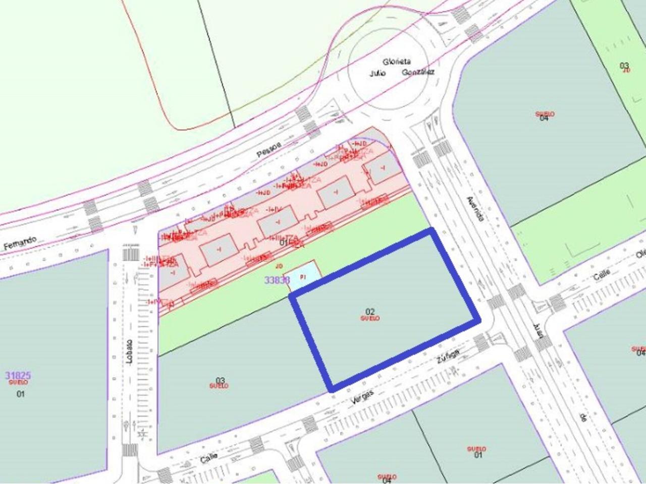
Suelo urbano residencial en zona El Marín en Salamanca, próximo al Parque Don Juan Tenorio, en zona de expansión de la población con todo tipo de servicios cercanos, bien comunicada, junto a la A-62 y a 10 min. de coche del centro de la ciudad. Cuenta con 3.096 m2 de suelo con una edificabilidad de 4.004 m2 de techo sobre rasante. Número de alturas: B+III. Para la promoción de 48 Viviendas de Protección Oficial de Regimen General. Oportunidad.
Suelo urbano residencial en zona El Marín en Salamanca, próximo al Parque Don Juan Tenorio, en zona de expansión de la población con todo tipo de servicios cercanos, bien comunicada, junto a la A-62 y a 10 min. de co...
Suelo urbano residencial en zona El Marín en Salamanca, próximo al Parque Don Juan Tenorio, en zona de expansión de la población con todo tipo de servicios cercanos, bien comunicada, junto a la A-62 y a 10 min. de coche del centro de la ciudad. Cuenta con 3.096 m2 de suelo con una edificabilidad de 4.004 m2 de techo sobre rasante. Número de alturas: B+III. Para la promoción de 48 Viviendas de Protección Oficial de Regimen General. Oportunidad.
Leer más