Nos preocupa tu privacidadEn pisos.com utilizamos cookies propias y de terceros para dar un servicio satisfactorio mediante cookies técnicas, de personalización y para fines analíticos. pulsa AQUÍ para más información. Puedes aceptar todas las cookis pulsando el botón "aceptar" o configurarlas o rechazar su uso pulsando
Mensaje enviado con éxito En breve nos pondremos en contacto.
Ha ocurrido un error. Inténtelo de nuevo más tarde.
Recomendar a un amigo
Mensaje enviado con éxito
Ha ocurrido un error. Inténtelo de nuevo más tarde.
Ref. EAASA352174
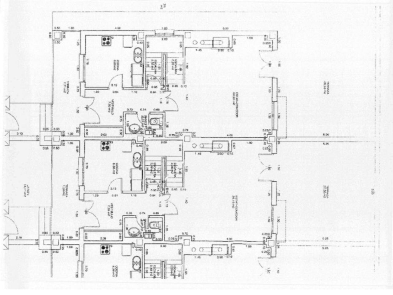
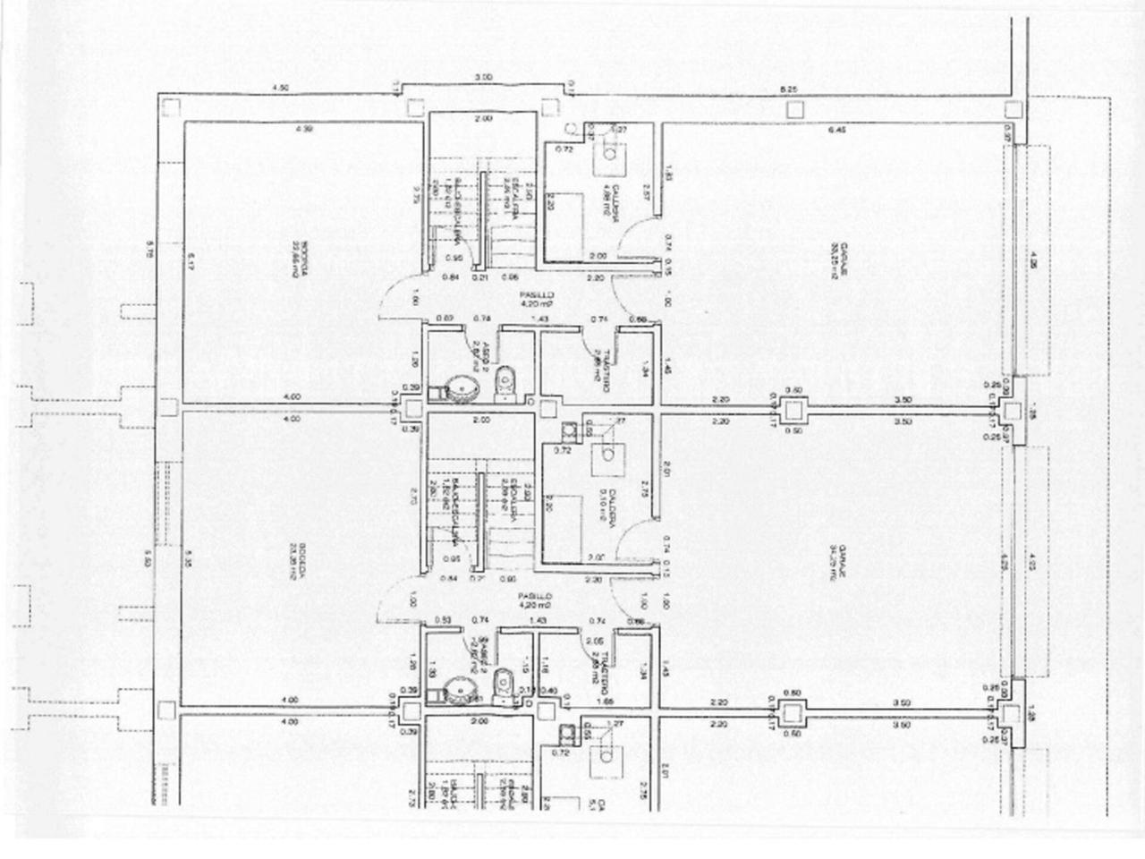
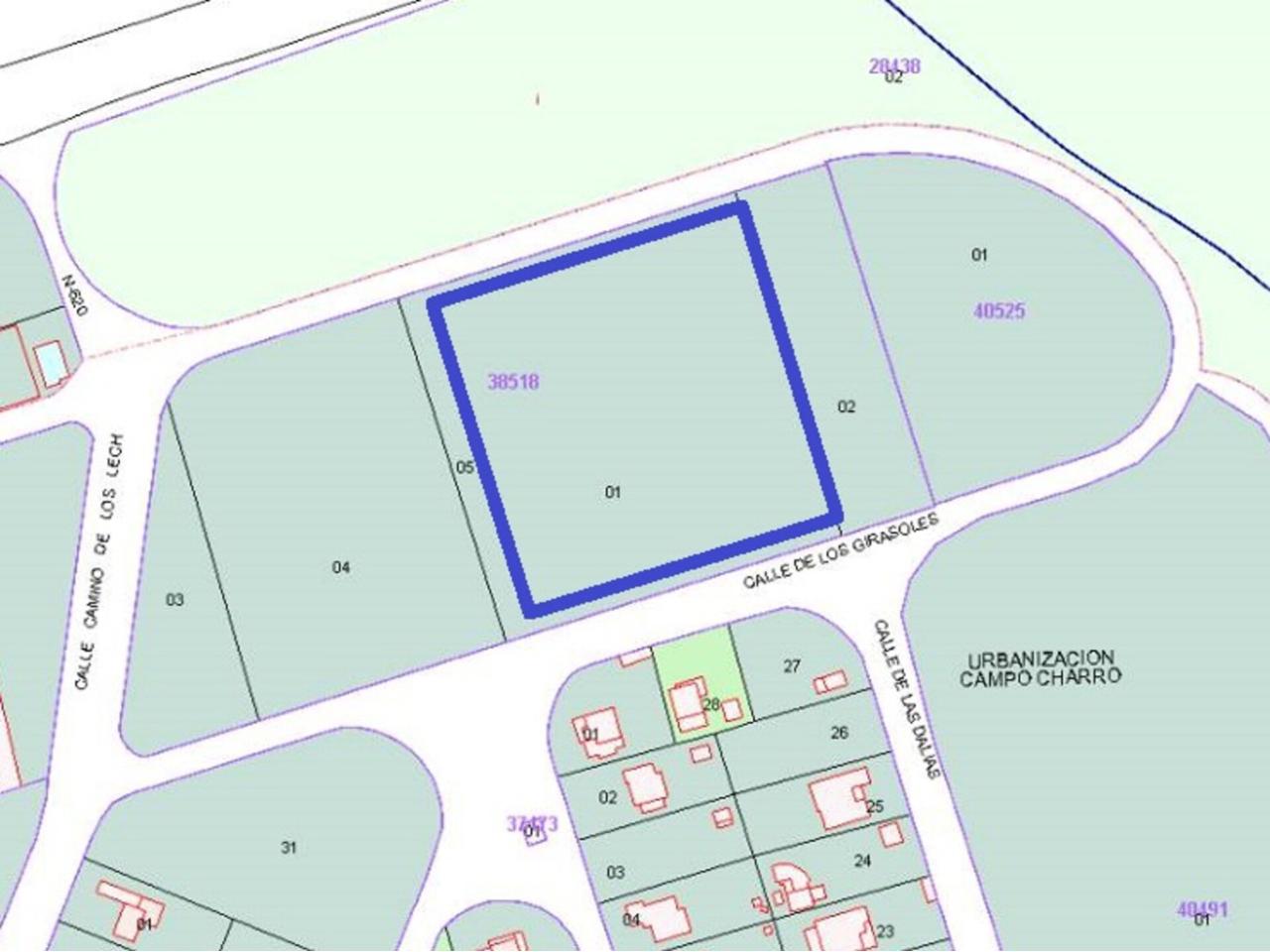
Complejo residencial de obra parada en construcción en Urbanización La Rad en Galindo y Peraguy, zona residencial consolidada con todo tipo de servicios cercanos y a menos de 15 min. de Salamanca. Formado por 8 bloques para la construcción de un total de 60 viviendas adosadas de 4 dormitorios, con planta sótano para garaje y 2 alturas. La superficie total construida del complejo es de 12.580 m2 (7.272 m2 sobre rasante, destinados a vivienda y 5.308 m2 bajo rasante, destinados a garaje). Se ubican sobre una parcela de 10.000 m2. El avance de las obras es el siguiente: Uno de los bloques se encuentra con cerramientos y cubierta ejecutados, otros tres bloques con estructura terminada y los cuatro restantes con estructura realizada hasta nivel de cota cero. Oportunidad.
Complejo residencial de obra parada en construcción en Urbanización La Rad en Galindo y Peraguy, zona residencial consolidada con todo tipo de servicios cercanos y a menos de 15 min. de Salamanca. Formado por 8 bloques...
Complejo residencial de obra parada en construcción en Urbanización La Rad en Galindo y Peraguy, zona residencial consolidada con todo tipo de servicios cercanos y a menos de 15 min. de Salamanca. Formado por 8 bloques para la construcción de un total de 60 viviendas adosadas de 4 dormitorios, con planta sótano para garaje y 2 alturas. La superficie total construida del complejo es de 12.580 m2 (7.272 m2 sobre rasante, destinados a vivienda y 5.308 m2 bajo rasante, destinados a garaje). Se ubican sobre una parcela de 10.000 m2. El avance de las obras es el siguiente: Uno de los bloques se encuentra con cerramientos y cubierta ejecutados, otros tres bloques con estructura terminada y los cuatro restantes con estructura realizada hasta nivel de cota cero. Oportunidad.