Ref. TAABU345468
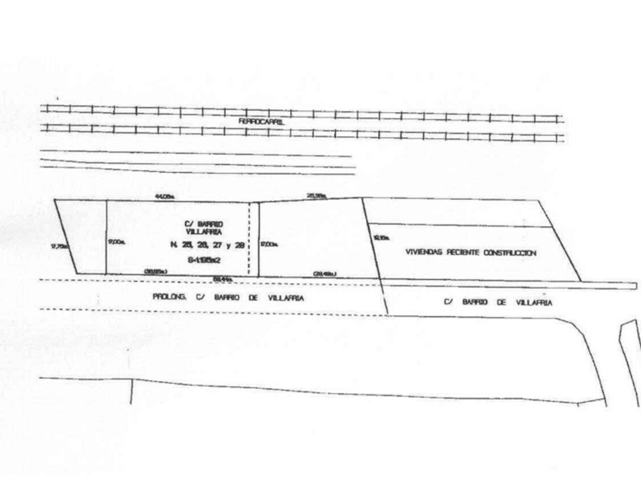
Suelo urbano residencial en zona Villafría en Burgos, zona residencial con todo tipo de servicios cercanos, bien comunicada, junto a la N-1 y a 15 min. del centro de la población. Cuenta con 1.195 m2 de suelo neto, una vez realizadas cesiones para vial pendiente de ejecución. Tiene una fachada de unos 53 m. y una edificabilidad sobre rasante de 2.250 m2 de techo. Profundidad edificable: 16 m. Retranqueos: 3 m. de fondo parcela. Número alturas: B+I+BC. Para la posible promoción de 9 viviendas adosadas o 6 viviendas pareadas. Pendiente de cesión y ejecución de vial. Oportunidad.
Suelo urbano residencial en zona Villafría en Burgos, zona residencial con todo tipo de servicios cercanos, bien comunicada, junto a la N-1 y a 15 min. del centro de la población. Cuenta con 1.195 m2 de suelo neto, una...
Suelo urbano residencial en zona Villafría en Burgos, zona residencial con todo tipo de servicios cercanos, bien comunicada, junto a la N-1 y a 15 min. del centro de la población. Cuenta con 1.195 m2 de suelo neto, una vez realizadas cesiones para vial pendiente de ejecución. Tiene una fachada de unos 53 m. y una edificabilidad sobre rasante de 2.250 m2 de techo. Profundidad edificable: 16 m. Retranqueos: 3 m. de fondo parcela. Número alturas: B+I+BC. Para la posible promoción de 9 viviendas adosadas o 6 viviendas pareadas. Pendiente de cesión y ejecución de vial. Oportunidad.
Leer más